городской округ Нижний Новгород, Нижний Новгород, Советский р-н, Барминская ул, 12А
Характеристика объекта
Тип сделки
продажа
Адрес
Нижний Новгород, Советский р-н, Барминская ул, 12А
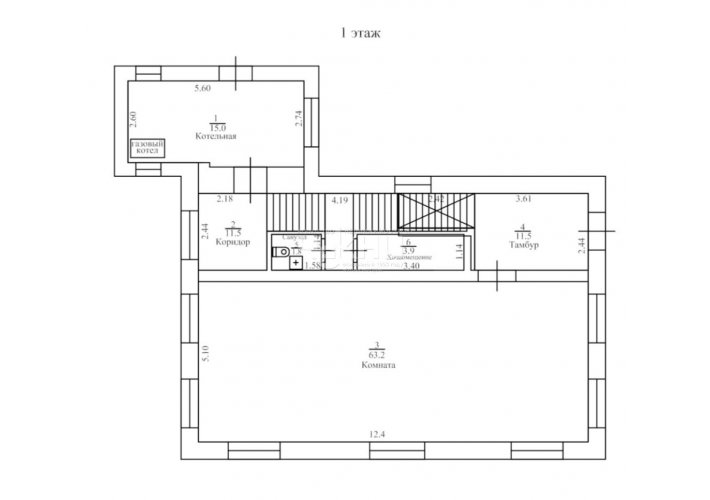
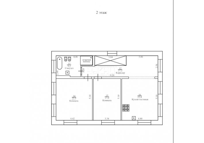
Этажность дома
3
Материал стен
Монолитно-блочный
Площадь дома
306.5/165.2/22.4 м²
Площадь участка сот.
383
Ответственный за объект

Продаю эксклюзивный дом в перспективном месте Нижнего Новгорода. Новая постройка из качественных материалов. White box , без чистовой отделки. Вся проводка, теплые полы, отопление сделаны. Окна Rehau. Дворовая территория выложена гранитной брусчаткой, Перила, забор и уличные фонари - кованные. Система видеонаблюдения по всему периметру. В доме два входа. Первый этаж и подвал возможно использовать под коммерческую недвижимость.








