городской округ Нижний Новгород, Анкудиновка д, Черкесская ул, 47
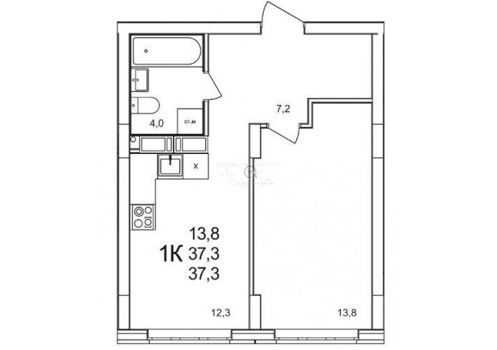
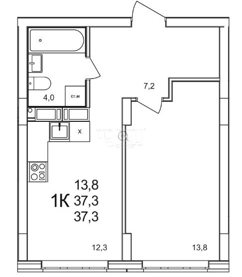
Характеристика объекта
Этаж/Этажность
19/19
Материал стен
Монолитно-блочный
Площадь
37.3/13.8/12.3 м²
Наличие лоджии/балкона
-
Ответственный за объект
В современном и развивающемся жилом комплексе Анкудиновский парк, продается квартира улучшенной планировки.
Двор без машин, много детских площадок, своя школа и детский сад.
В шаговой доступности кафе, магазины, аптеки, а для прогулок- ботанический сад.
Отличная планировка:
прихожая 7,2м с возможностью разместить гардеробную
просторный санузел 4,0м2
кухня- гостиная 12,3м2
спальня 13,8м с удачным местом под шкаф
От застройщика есть дополнительные скидки:
-5% для иногородних
-7% для семей с 3-мя детьми
-10% скидка для участников СВО
-0% рассрочка до ввода объекта в эксплуатацию
Квартира с чистовой отделкой.








